Monroe Station

Twin Falls, Idaho

2026-2033

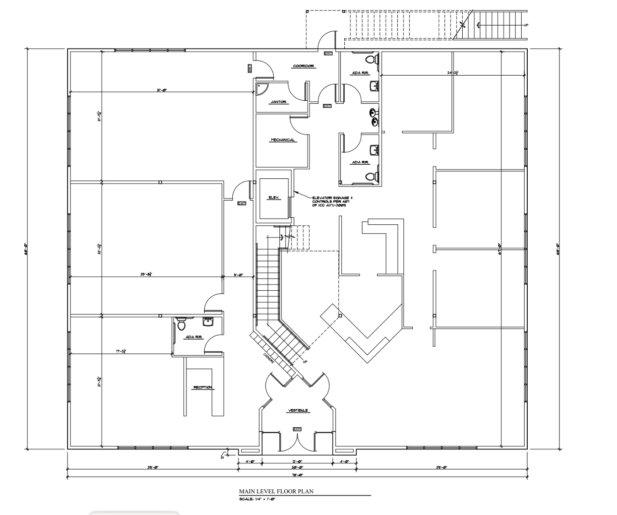
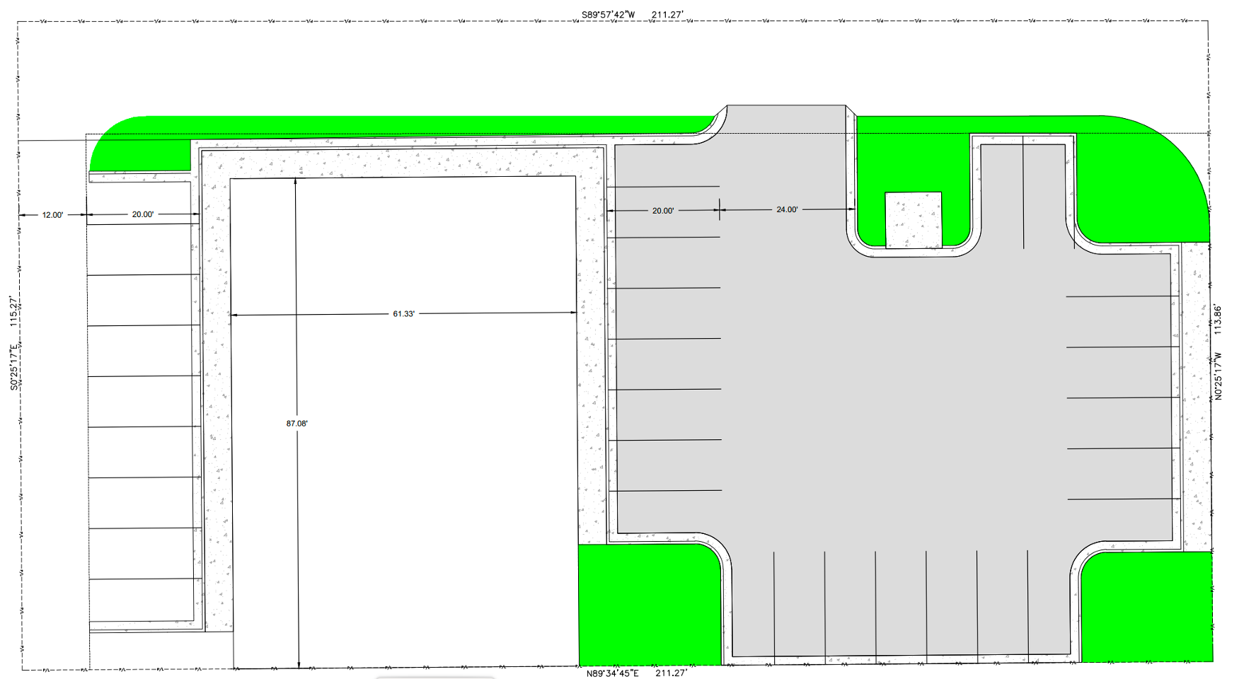
Monroe Station is a planned ground up 10,600SF commercial building. It will provide a two-story, multi-tenant office and retail space to a market with 2.4% vacancy rate and a strong need for newer options in a high traffic corridor of Twin Falls, Idaho. Monroe Station will provide 8% annual Preferred Return to accredited investors, with 15.4% IRR, 34.4% ARR and 2.39x Multiplier after 7 years.